Обяви За нас Контакти
Продава 1-СТАЕН
град Пловдив, Прослав
62 200 €
121 652.63 лв.

(1 269 €, 2 481.95 лв./m2)
Цената е с включено ДДС
Публикувана в 20:00 на 31 март, 2026 год.
Обявата е посетена 9 пъти.
Площ:
49 m2
Етаж:
3-ти от 5
Строителство:
Тухла, Ще бъде въведен в експлоатация 2028 г.

Описание на имота:


0% КОМИСИОН - ДИРЕКТНИ ЦЕНИ ОТ ИНВЕСТИТОР ! 💥ОФЕРТА : 19400
'ГОЛД ИМОТИ' има удоволствие да Ви представи новоизграждащ се проект от две малки сгради на пет етажа .

➡️Разпределение :
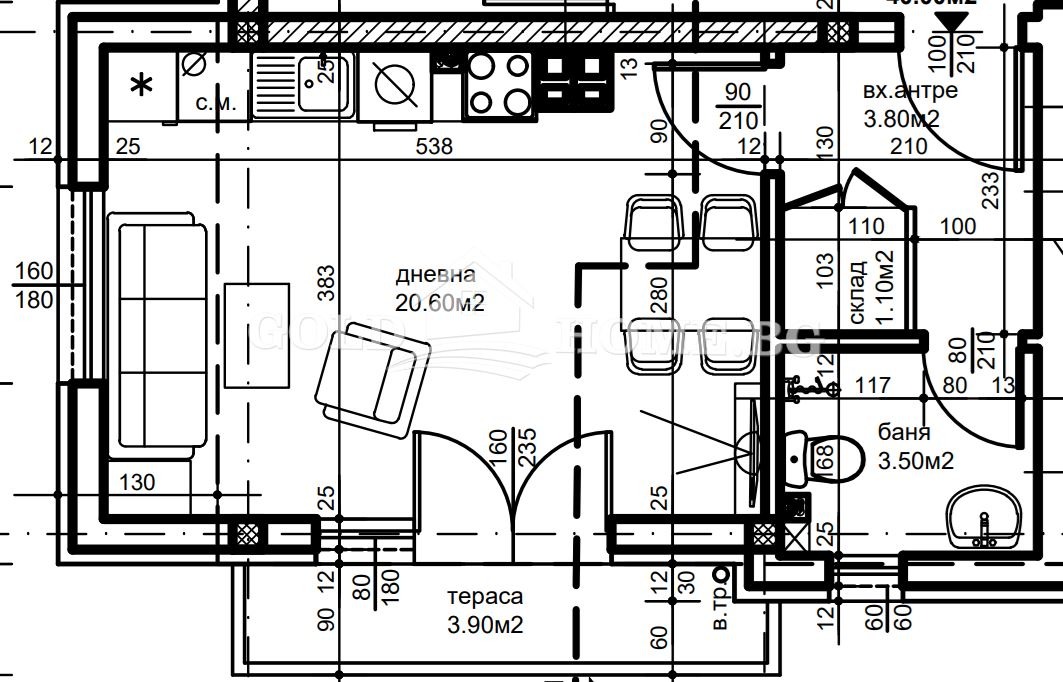
Едностайните апартаменти се състоят от входно антре , една стая обособена с дневна с кухненски бокс и спален кът /21кв.м./ , баня с тоалетна , склад и тераса.
🌞Изложение : Юг-Запад

🅿️Паркиране :
Възможност за покупка на подземни и наземни паркоместа и партерни гаражи.

✅Степен на завършеност:
- Жилищата се издават по БДС: шпакловка и замазка, ел. инсталация до ключ, ВиК до тапа, външна блиндирана врата, висок клас ПВЦ дограма.

📅 Срокове за изпълнение:
-Очаква се стартиране на проекта до средата на годината.
-Пусков срок - 2,5 години от стартирането на проекта.

✅За сградата :
-Две малки сгради на пет етажа.
-Всяка сграда е с общо 12 апартамента.
-Наличие на едностайни,двустайни ,тристайни и четиристайни апартаменти.

📍Локация:
Намира се в оживената част на кв.Прослав - в близост до ОУ 'Тодор Каблешков'

➡️ 'ГОЛД ИМОТИ' Ви предлага да се възползвате от професионално кредитно посредничество чрез Credit Center при ипотека, потребителски кредит и рефинансиране!
-УСЛУГАТА Е ИЗЦЯЛО БЕЗПЛАТНА!
-ИЗГОТВЯНЕ НА НЯКОЛКО ОФЕРТИ ОТ ВОДЕЩИ БАНКИ!
-НАЙ-ИЗГОДНИ УСЛОВИЯ СПРЯМО ВАШИЯТ ПРОФИЛ!
-НЕ Е НЕОБХОДИМО ДА СЕ РАЗКАРВАТЕ ВЪВ ВСЕКИ КЛОН НА РАЗЛИЧНИ БАНКИ!
➡️ Още атрактивни и актуални оферти може да разгледате на нашият сайт: www.goldhome.bg
📲 За повече информация и при интерес за оглед, моля свържете се с нас. 📲
Особености
Тухла
Асансьор
С гараж
С паркинг
Интернет връзка
Контрол на достъпа
За контакт:
0894 274 966
Агенция:
ГОЛД ИМОТИ
0899143262
ГОЛД ИМОТИ logo
Медал за прослужено време
В imot.bg от 2018 г.
gold_imoti.imot.bg
Адрес:
област Пловдив, гр. Пловдив, улица '' Брезовска '' 31а
ИЗПРАТИ ЗАПИТВАНЕ
ИЗПРАТИ ЗАПИТВАНЕТО

Продава 1-СТАЕН
град Пловдив, Прослав
Обява: 1a177497641769324

62 200 €
121 652.63 лв.
(1 269 €, 2 481.95 лв./m2)

Цената е с включено ДДС
ЗАПАЗИ ОБЯВАТА

Местоположение: град Пловдив, Прослав

Допълнителни данни за имотите в района и сравнение с други райони

Покажи

Период

и 3 месеца

* Средните цени са определени чрез медианна стойност